Адрес: 121351, Москва, ул. Коцюбинского, д. 4, помещ. 206
8-495-744-66-10 (многоканальный)
График работы: Пн - Чт — с 9:00 до 18:00 Мск,
Пт — с 9:00 до 17:00 Мск.
8-800-511-79-96 (бесплатный звонок)
Заказать звонокОбратная связь
Ваша корзинаСравнение товара
Для коттеджей  Проектирование вентиляции коттеджей

Проектирование вентиляции коттеджа

Проектирование вентиляции коттеджа

Обеспечить долговременную и комфортную эксплуатацию вентиляции коттеджа или частного дома позволяет грамотное проектирование. ООО «Асама Трейд» оказывает эту услугу в Москве, Московской и близлежащих областях по приемлемым ценам.

Специалисты компании осуществляют проектирование вентиляции коттеджей и частных домов с использованием современных разработок и на базе передового программного обеспечения. Это позволяет, с одной стороны, обеспечивать высокие эксплуатационно-технические параметры создаваемых вентиляционных систем, а с другой стороны, минимизировать расходы заказчика. Важную роль в получении качественного результата играет многолетний опыт и превосходная квалификация разработчиков компании.

Ключевые черты проектирования вентиляции коттеджей в компании:

  • оперативное и качественное выполнение всех этапов разработки;
  • четкое соблюдение действующих стандартов, норм и правил;
  • постоянный контакт с клиентом;
  • высокий уровень взаимопонимания;
  • гарантия качества работ;
  • задействование инновационных методов разработки;
  • оптимальное соотношение цены и качества работ.
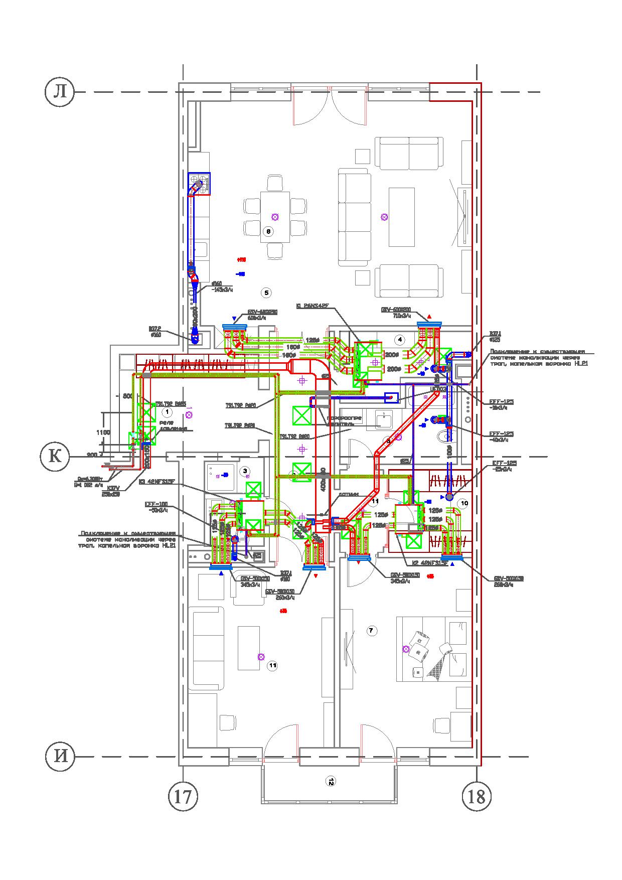
Проектирование вентиляции коттеджа пример

Почему заказать проектирование вентиляции коттеджа стоит именно в ООО «Асама Трейд»?

Помимо высокого качества проектирования вентиляции и гибкой маркетинговой стратегии важным доводом в пользу сотрудничества с фирмой выступает высокий уровень сопутствующего обслуживания. Сервис предприятия отличает:

Проектирование вентиляции коттеджа пример2
  • осуществление поставки, доставки и монтажа вентиляционного оборудования;
  • вежливое и предупредительное отношение персонала;
  • четкое выполнение взятых на себя обязательств;
  • несколько форм и удобство оплаты.

Заказать проектирование вентиляции коттеджей и частных домов можно, сделав телефонный звонок в офис ООО «Асама Трейд». Для этой цели необходимо позвонить по одному из приведенных ниже номеров:

121351, Москва, ул. Коцюбинского, д. 4, помещ. 206
ОГРН 1097746775455
8-495-744-66-10 (многоканальный)
8-800-511-79-96 (бесплатный звонок)
Яндекс.Метрика

Информация на сайте www.asamagroup.ru не является публичной офертой и является собственностью интернет-магазина. Запрещается копирование любых материалов с сайта www.asamagroup.ru. Все права защищены.